Объявления: Продать квартиру, Украина
Продать квартиру в регионе Украина можно на доске объявлений строительного портала ДивоСтрой. Ниже представлены предложения частных лиц, строительных компаний, агентств, которые предоставляют квартиры на продажу. Каждое объявление проходит проверку.
Blago — провідна девелоперська компанія Івано-Франківська, яка спеціалізується на будівництві сучасного житла, комерційної нерухомості та створенні комфортного середовища для життя.
Маєте бажання жити в сучасному та затишному районі передмістя? Пропонуємо якісні квартири безпосередньо від забудовника у житловому комплексі Ювілейний. Це можливість обрати житло, яке повністю відповідає вашим очікуванням, а також вигідно інвестувати у власне майбутнє.
Квартира 93кв.м. по факту 2 полноценные квартиры каждая со своим санузлом , кухней и балконом. Очень удобно для большой семьи в одном табуре но отдельно, или для бизнеса на дому.
Риэлтор с большим опытом работы Поможет правильно оценить, подготовить пакет документов и продать квартиру, дом или нежилое помещение. Юридическая консультация по недвижимости и налогам.
Пропонуємо унікальну можливість стати власником просторої квартири в одному з найкращих районів Києва — ідеальне поєднання безпеки, комфорту та натхнення. Квартира для поціновувачів якості та простору, розташована на високому першому поверсі — найкраще рішення для сьогоднішніх безпекових реалій.
Продам 2 кімнатну квартиру, найкращого планування, у престижному ЖК комфорт класу «Парк Таун», Гостомель, Буча. Можливо під єОселю! Зданий будинок більше 3 років, заселений.
Срочная продажа от собственника! Очень крутая 3к квартира в Ирпене. Общая площадь 85 кв.м. Таких квартир в комплексе больше не будет. Красивые, не высокие домики в окружении леса и речки.
Продам красиву двух кімнатну квартиру з капітальним добротним дорогим ремонтом на п'ятому поверсі п'яти поверхівки.Ремонт даху.Продумано все до дрібниць. Поряд вся інфраструктура - магазини, супермаркети, школи, садочкі, спортивні зали, Урбан-парк на бульварі Юр*єва, зупинки транспорту і метро.
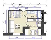
Продам 1-о кімнатну квартиру 35 м.кв. з документами. Квартира розташована на 8-му поверсі 10 поверхового будинку. В квартирі виконані наступні види робіт: - встановлений 2-х контурний газовий котел Buderus; - штукатурка стін цементно-піщана; - лазерна стяжка полу; - заведена електроенергія; - встановлені лічильники споживання.
Продам 1-о кімнатну квартиру 39 м.кв. з документами. Квартира розташована на 2-му поверсі 10 поверхового будинку. В Квартирі виконані наступні види робіт: - встановлений 2-х контурний газовий котел Buderus - Змонтована система опалення - тепла підлога - розведена вода і каналізація по точкам - штукатурка стін цементно-піщана - лазерна стяжка полу - заведено електроенергія - встановлені лічильники споживання Будинок підключений до всіх міьких централізованих мереж.
Продам 1-о кімнатну квартиру повністю укомплектовану, занось речі і проживай. Загальна площа 40 м.кв. поверх 2 /10 Кухня укомплектована меблями і побутовою технікою. Будинок розташований поряд з парком Покровський Через дорогу школа та дитячий садок, озеро ЖК Грін Лайф 3, зданий в 2021 році.
Продам квартиру-студию 20 м.кв. Маленька компактна квартира в лісопарковій зоні Ірпеня. Будинок розташований по вул. Лисенка 21. В комплектацю квартири входить: - стіни цегляні - перекриття залізобетонні плити - заведена електроенергі - центральне водопостачання та водовідведення На території будинку велика парковка, гаражі в комплексі, дитячий та спортивний майданчик.
Продам квартиру 27 м.кв. Сучасна квартира в лісопарковій зоні Ірпеня. Будинок розташований в по вул. Лисенка 21. В комплектацю квартири входить: - стіни цегляні - перекриття залізобетонні плити - заведена електроенергі - центральне водопостачання та водовідведення На території будинку велика парковка, гаражі в комплексі, дитячий та спортивний майданчик.
Плануєте придбати затишну та комфортну квартиру в центрі Чернігова? Тоді ця пропозиція — для вас! Продається 2-кімнатна квартира в гарному стані, на першому поверсі цегляного п'ятиповерхового будинку, розташованого по вулиці Текстильників, Шерстянка.
Хозяин продаст 3-х комнатную квартиру в 5 минутах от метро Олексеевская. Лесная сторона. Во дворе садик и школа. Рядом супермаркеты, стоянка. Стоянки пластиковые. Кухня, ванная, туалет, балконы - плитка.
Новий рік це час подарунків, час здійснення мрій. Саме час порадувати себе власним житлом - купити квартиру в Полтаві із новорічними знижками. Забудовники Полтави пропонують час від часу акції, але ми в “БМК “АТЛАНТ” влаштували для Вас справжнє свято.
Квартира має кімнату з двоспальним ліжком та перенесену робочу зону кухні на балкон, що дає другу кімнату та 4 повноцінні спальні місця (ліжко в спальні та диван у другій кімнаті).
Продам 2-х ком. кв. улучшенной планировки - 5 мин. пешком м. Холодная гора, 7/10. Площадь - 56 / 17.5 / 12.5 / 9, кап. ремонт, комнаты раздельные на 2 стороны, с/у раздельный, электроплита, МПО, лоджия и балкон с тройными стеклопакетами.
Продам 2 комнатная квартира метро Ботанический Сад, Ул. Новгородская 44, 5 минут пешком от метро. Дом кирпичный. 6/9 лоджия застеклена, обшита деревом, не углов. 50/29/8 Комнаты разд.
Продаю уютную 1-комнатную квартиру в живописном жилом массиве Фрунзенский. Это предложение идеально для тех, кто ценит комфорт и удобство в каждом квадратном метре. Особенности.
Выше представлены объявления и цены на продажу квартир в регионе Россия на информационно - торговом сайте ДивоСтрой Россия. В данной категории вы найдете, как частные объявления, так и предложения агентств и строительных компаний региона Россия. Все предложения сопровождаются комментариями пользователей и рейтингами продавцов.
Ваши предложения или жалобы на объявления представленные выше, принимаем через службу поддержки (мы отвечаем в течение нескольких минут в рабочие дни и нескольких часов в выходные дни). Мы надеемся, что ДивоСтрой Россия станет надежным инструментом в Вашей работе на строительном рынке.



























